112 Seaborn RoadPonder, TX 76259



Mortgage Calculator
Monthly Payment (Est.)
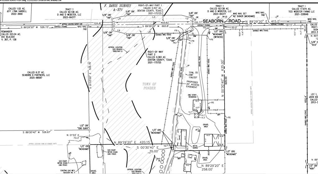
$3,935This 9.18 AC parcel is located on Seaborn Rd less than ¼ mile from FM 156 in Ponder, TX. It has approx. 680 feet of frontage on Seaborn Rd and is served by city water and commercial electric service. There is a working septic system in place. The road on the east side of the property provides access to a 2,100 SF, 2-story home. The Seller has not factored the value of the home into the sale price of the property. The home is currently occupied by a Tenant, but the Seller makes no guarantees regarding the habitability of the home. The road on the west side of the property is a permanent access easement for the two properties to the south of the subject property (parcels 45233 and 64258). The road is used and maintained by the energy company that leases the mineral rights for the property. The 2,480 SF warehouse and the 2,033 SF shed in the back of the property are included in the sale. Approximately thirty percent of the property (located on the west side of the property) is in the 100-year flood plain. The Seller will retain the mineral rights. Ponder, Texas, has experienced notable development in recent years. The city's comprehensive plan reflects a forward-thinking approach, with a strong focus on infrastructure improvements and industrial development.
| 4 hours ago | Listing updated with changes from the MLS® | |
| 4 hours ago | Listing first seen on site |
© 2020 North Texas Real Estate Information Systems. All rights reserved. Information is deemed reliable but is not guaranteed accurate by the MLS or NTREIS. The information being provided is for the consumer's personal, non-commercial use, and may not be reproduced, redistributed, or used for any purpose other than to identify prospective properties consumers may be interested in purchasing.
Last checked: 2026-01-28 11:09 PM CST



Did you know? You can invite friends and family to your search. They can join your search, rate and discuss listings with you.