TBD Lot 2 SycamoreHico, TX 76457


Mortgage Calculator
Monthly Payment (Est.)
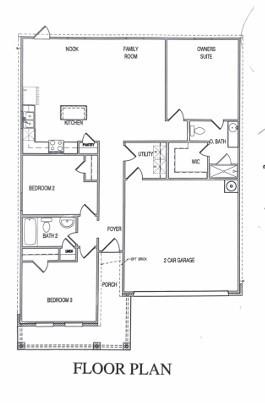
$1,255NEW CONSTRUCTION COMING SPRING 2026. We are excited to bring this prime home product to HICO. A beautiful 3-bedroom, 2-bathroom home on over half an acre lot. Walk up to the inviting front porch, covered, and perfect for the sitting and visiting. The living area is open with windows overlooking the large backyard. The kitchen hosts an island perfect for casual meals or entertaining. Dining area is adjacent to the kitchen an allows for great flow. The living room is generous in size, plenty of natural light, and central to the home. Tucked away is the primary bedroom, with an ensuite bath and large walk-in closet. The two secondary bedrooms are in a separate wing of the home and share a hall bathroom. From the attached 2 car garage you can enter the home through a utility mud room, large enough for laundry and other utility storage. If you have any questions, JUST ASK. The builder has some home similar that are farther along in the process nearby, ask agent about walking some of those to get a good idea of the home while under construction. Ask about incentives, including for first responders and educators.
| 56 minutes ago | Listing updated with changes from the MLS® | |
| 4 hours ago | Listing first seen on site |
© 2020 North Texas Real Estate Information Systems. All rights reserved. Information is deemed reliable but is not guaranteed accurate by the MLS or NTREIS. The information being provided is for the consumer's personal, non-commercial use, and may not be reproduced, redistributed, or used for any purpose other than to identify prospective properties consumers may be interested in purchasing.
Last checked: 2026-02-01 02:03 AM CST



Did you know? You can invite friends and family to your search. They can join your search, rate and discuss listings with you.