1109 Vista WayRockwall, TX 75087




Mortgage Calculator
Monthly Payment (Est.)
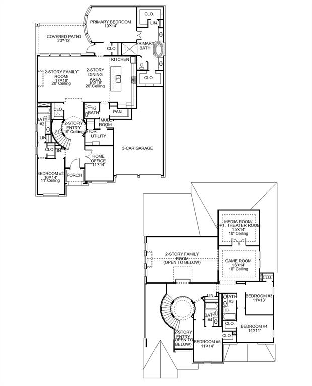
$3,654Large porch area leads to a two-story rotunda entry with a 19-foot ceiling. Home office with French doors. Guest suite with a full bath and a large closet. Kitchen features an island with built-in seating space, a 5-burner gas cooktop, double wall oven, lots of counter space and a large walk-in pantry. Two-story dining area leads to the open family room with a wall of windows and a wood mantel fireplace. Hardwood floors throughout main living area. Secluded primary suite with a curved wall of windows. Double doors lead to primary bath with dual vanities, a freestanding tub, a separate glass-enclosed shower and two large walk-in closets. Curved staircase leads to the second level featuring a game room, a theatre room with French doors and a guest suite with a full bath and a walk-in closet. Covered backyard patio. Mud room leads to the three-car garage.
| 7 hours ago | Listing updated with changes from the MLS® | |
| 7 hours ago | Listing first seen on site |
© 2020 North Texas Real Estate Information Systems. All rights reserved. Information is deemed reliable but is not guaranteed accurate by the MLS or NTREIS. The information being provided is for the consumer's personal, non-commercial use, and may not be reproduced, redistributed, or used for any purpose other than to identify prospective properties consumers may be interested in purchasing.
Last checked: 2026-02-24 08:33 PM CST



Did you know? You can invite friends and family to your search. They can join your search, rate and discuss listings with you.